0
Réf : 1080va
Vendu

VEND DEUX PIECES CABINE VUE MER AVEC GARAGE

Sète (34200)

A propos de ce bien

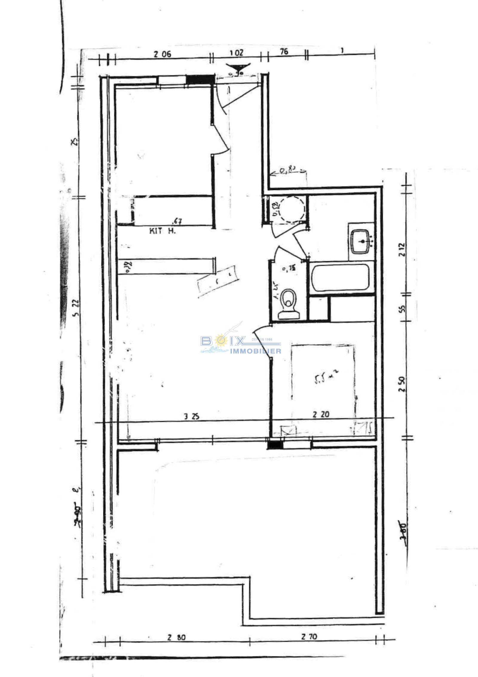
Vend appartement au dernier étage, vue mer, en bord de plage, dans le quartier de la Corniche à Sète. Ce deux pièces cabine de 34 m² habitable est composé d'un séjour avec kitchenette équipée ouvrant sur une terrasse de 11 m². une chambre côté mer et une cabine côté coursive, salle de bains, WC séparés. Vous apprécierez l'orientation ouest et la vue sur la mer et le Canigou. Vous bénéficierez d'un garage en sous/sol directement accessible par l'ascenseur. Dans la résidence vous trouverez un local à vélo, une piscine, un accès direct à la mer. A proximité, vous pourrez rejoindre facilement le centre du quartier de la Corniche et ses commerces. A visiter très vite, Boix Immoblier, renseignements Gérard Boix 04 67 51 50 50

Estimation des coûts annuels entre 490 € et 700 € par an, selon les prix moyens indexés au 1er janvier 2021

« Les informations sur les risques auxquels ce bien est exposé sont disponibles sur le site Géorisques : www.géorisques.gouv.fr »

Descriptif du bien

TRAD_PAMPERO_Caracteristique Valeurs
Code postal 34200
Surface habitable (m²) 34 m²
Surface loi Carrez (m²) 34 m²
Nombre de chambre(s) 1
Nombre de pièces 2
Etage 5
Nombre de niveaux 5
Ascenseur OUI
Vue MER
TRAD_PAMPERO_Caracteristique Valeurs
Nb de salle d'eau 1
Cuisine Américaine
Type de cuisine Equipée
Loggia OUI
Nombre de garage 1
Exposition Sud-Ouest
Année de construction 1993
Quartier CORNICHE, Corniche Lazaret
TRAD_PAMPERO_Caracteristique Valeurs
Copropriété OUI
Lot n° 12
nombre de lots 200
Quote Part annuelle des charges 1 350 €
statut du syndic pas de procédure en cours
TRAD_PAMPERO_Caracteristique Valeurs
Les honoraires d'agence seront intégralement à la charge du vendeur  
Taxe foncière annuelle 1 390 €